Lindvallen – SkiStar Lodge Lindvallen 221 – 2 soveværelser, 6 senge, 45m2
Lejlighed på 2 etage, 6 sengepladser, 45 m², alrum med køkkenafdeling, 2 soveværelser, 1 bruser, 1 WC, adgang til fælles sauna, delvis renoveret år 2023.
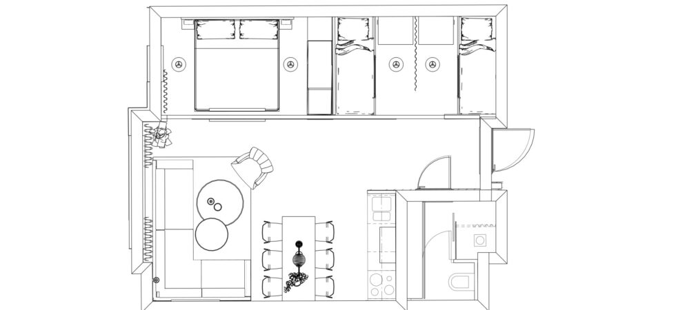
Køkken
Køkkenet indeholder: keramiske kogeplader med ovn, køl/frys, opvaskemaskine, microovn.
Hygiejne
Badeværelset-1 = bruse/wc.
Soveværelse
Soveværelse-1= 1 dobbeltseng. Soveværelse-2= 2 køjesenge.
Vigtigt
Husdyr og rygning ikke tilladt, Obs! Ikke allergisaneret, Overtrædelse af rygeforbud straffes efter loven.
Uge 8 og 9, 2026, er denne bolig reserveret til dig der er skiløbere i vores skiområde. Det betyder, at du skal bestille SkiPass der gælder for hele opholdet til alle gæster (7 år og ældre) på bestillingstidspunktet.
Alle personer skal være fyldt 18 år for at kunne bo i opholdsenheden. Der kræves legitimation ved ankomst. Aldergrænse gjælder ikke børn i selskab med formynder.
Nærmeste liftanlæg er Lindvallen, Afstand til lift/bakke ca 20m, Afhængigt af sneforholdene kan afstanden til lift/bakke variere.
Andet
Opholdsstue med køkkenafdeling.
TV, adgang til fælles sauna, og privat aflåseligt værelse til skiudstyr på 1. etage, adgang til fælles elbilopladere med type 2 stik mod betaling.
I denne indkvartering er SkiStar Free WiFi.


